太田市の不動産|株式会社ie > (事務所(賃貸))地域から探す > 太田市 > CAMP407 > A2
新着情報:CAMP407の空室情報ならコチラ。賃料は28.6万円です。駐車場があり、敷地内に車を置いておくことができます。現在3台分の駐車スペースの空きがあるので、ぜひお問い合わせください。初期費用に敷金1ヵ月分が含まれます。初期費用として礼金は1ヶ月分かかります。好立地で、不便に感じる事はありません。

| 所在地 | 群馬県太田市西矢島町714-1 | ||
|---|---|---|---|
| 交通 | |||
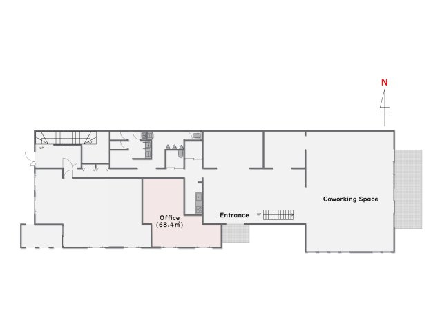
| 賃料/坪単価 | 22万円/1.06万円 | 坪数(面積) | 20.69坪(68.40㎡) |
| 管理費・共益費 | 30,000円 | 敷金/礼金/保証金 | 60万円/20万円/0ヶ月 |
| 償却/敷引 | -/- | 更新料/更新事務手数料 | 22万円(新賃料)/12万円 |
| 権利金/雑費 | -/- | ||
| 造作譲渡金 | - | 駐車場/月額料金 | 空有(3台)/ 3台無料。4代目以降は近隣駐車場に1台/4,400円で契約可能。台数は要相談。 |
| 保険加入/料金 | 有/- | 保険名/保険期間 | -/- |
| 保証人代行義務/利用料 | 任意加入/ 確認必須。 | 保証会社 | その他 |
| 保証会社詳細 | - | 向き | 南 |
| 築年月(築年数) | 2005年 6月 (築20年) | 契約期間 | 3年 |
| 種別/構造 | 事務所/鉄骨造 | 部屋/所在階/階建 | A2/1階/2階建 |
| 総戸数 | - | 現況/引渡時期 | 空家/即時 |
| 取引態様 | 一般媒介 | 用途地域 | 準工業 |
| 物件番号 | 76189294 | 取引条件の有効期限 | 2026年03月20日 |
| 設備条件 |
|
||
| 備考 |
CAMP407:東武伊勢崎線太田にも近くて便利。賃料は28.6万円です。IT向けに造られているので商業施設が多くありますよ。エントランスにはオートロック機能が付いているので、建物内に知らない来訪者が入って来づらくなります。不便を感じる事は少ない好立地に位置していて魅力的です。初期費用として礼金1ヵ月分がかかります。IT向けの物件なので周辺環境もとてもいい場所となっています。駐車場追加可能(有料/要相談) 要家財保険 |
||
| 設備(その他) | 電気料金は毎月オーナーより請求 | ||
| 取扱会社 |
|
||
| QRコード |
このQRコードを読み取ることで、スマホでも物件情報を確認できます。 |
||
※地図上に表示される物件の位置は付近住所に所在することを表すものであり、実際の物件所在地とは異なる場合がございます。
CAMP407に関するこだわり条件から探す
太田市の町名から探す